1. Accueil
  2. Achat
  3. Achat Appartement
  4. Achat Appartement Marne (51)
  5. Achat Appartement REIMS (51100)

Appartement F3 à vendre 3 pièces - 54,40 m2 REIMS - 51

Ref : 18078

105 000 €

  • Honoraires charge vendeur
Appartement F3 à vendre - 3 pièces - 54,40 m2 - Reims - 51 - CHAMPAGNE-ARDENNE
Appartement F3 à vendre - 3 pièces - 54,40 m2 - Reims - 51 - CHAMPAGNE-ARDENNE
Envoyer un message
Message
Envoyer ce bien à un ami

Description

REIMS - Place Luton - Dans une petite copropriété, venez découvrir cet appartement vendu loué. Il vous offre une entrée, un séjour, une cuisine, une chambre, un bureau (possibilité 2ème chambre), une salle de douches, une terrasse et une cave.
Pour plus d'informations, contactez Julien VAILLANT au 03.26.02.21.21 ou par mail à espace.conseil@martinot-immobilier.fr

Localisation

Laissez-nous vos coordonnées pour obtenir la localisation

Envoyer

Afficher sur la carte :

Demander la localisation

Vue globale

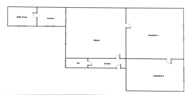
  • Surface totale : 54,4 m2
  • Surface habitable : 54,4 m2
  • Type d'appartement : F3
  • Étage : Rez-de-chaussée
  • Nombre de pièces : 3
    • Entrée (2,3 m2)
    • Séjour (15,3 m2)
    • Chambre (15,6 m2)
    • Chambre (8,7 m2)
    • Cuisine (5,9 m2)
    • Salle d'eau (5,6 m2)
    • WC (1 m2)

Équipements

Général

  • WC séparés
  • Chauffage : Gaz ville individuel gaz ville
  • Eau chaude : Chaudière

À savoir

Pour consulter les barèmes d'honoraires de l'agence, cliquez ici

Les informations sur les risques auxquels ce bien est exposé sont disponibles sur le site Géorisques :

Copropriété

  • Nombre de Lots : 6
  • Charges courantes par an : 960,0 €
  • Pas de procédure en cours

Les performances énergétiques

logement extrêmement performantlogement extrêmement peu performantconsommationémissions(énergie primaire)31268kWh/m2.ankg CO2/m2.anPassoire énergétique
* Dont émissions de gaz à effet de serre peu d'émissions de CO2 Émissions de CO2 très importantes kgCO 2 /m 2 .an 68

Date du DPE : 04/07/2022

Bien proposé par Julien vaillant EI, agent commercial (RSAC 847623048)

Ce bien est proposé par l'agence CENTURY 21 Espace Conseil

CENTURY 21 Espace Conseil

CENTURY 21 Espace Conseil

250 avenue de Laon

51100 REIMS

03 26 02 21 21
qualitelis Votre agence est notée
Achat Vente
9,0/10

Nos offres

Notre agence immobilière à Reims vous propose :

Calculer vos mensualités
de remboursement

Montant du prêt :
Durée du crédit
Taux d'intérêt (hors assurances)

vos mensualités

- € par mois

(Dont -€ d’assurances)

Crédit immobilier simulation
et premiers calculs

vous êtes acquéreur et vendeur,

Vous êtes acquéreur et vendeur, nos agents immobiliers peuvent vous accompagner dans vos projets

Contacter l'agence

Envoyer à un ami

Envoyer

Créer votre alerte

Rappel de vos critères de recherche :

Erreur dans les critères envoyés

Limite d'alertes atteinte

Cette alerte existe déjà

Cette alerte est déjà enregistrée pour cette adresse email. Vous continuerez à recevoir les biens correspondant à vos critères.

Une erreur est survenue

Merci de réessayer ultérieurement.

Votre alerte a été créée

Vous recevrez les biens correspondant à vos critères.

logo vente privées

48h

d’avance sur
le marché

Prenez un temps d’avance sur le marché en profitant gratuitement des Ventes Privées CENTURY 21

Si ce n’est déjà fait, allez compléter le profil de votre compte afin de pouvoir recevoir en avant-première des biens exclusifs, réservés à nos clients pendant les 48 premières heures suivant leur commercialisation.

Nos agences proposent régulièrement des biens comme celui que vous cherchez

Ne ratez pas une opportunité, on vous alerte en priorité !

Êtes-vous actuellement propriétaire de votre bien ?
Créer une alerte
Je souhaite être alerté
Voir les biens correspondants

Envoyer un message :

Envoyer